
Diseño arquitectónico y construcción de calidad
Expertos en diseño residencial con más de 10 años de experiencia en construcción y diseño arquitectónico.
Aspecto fundamental en la creación de edificios que no solo sean funcionales y estéticamente agradables, sino también seguros, duraderos y sostenibles.


El uso de materiales duraderos y de alto rendimiento, una mano de obra especializada y meticulosa, y la implementación de técnicas y prácticas constructivas que garantizan la seguridad, la eficiencia y la durabilidad.
La calidad inicia desde el fondo
En GERSOT no dejamos ningún detalle al azar, empezamos colocando una base muy sólida para desplantar la casa desde un plataforma que tenga mucha capacidad de carga.


Importancia de una buena cubierta
Cuando se trata de colocar un techo sobre las paredes de cualquera de nuestras construcción no escatimamos en la colocación de los elementos estructurales adecuados para darle un soporte sólido y duradero.
Las carpinterías, los cuarzos, la colocación de la loseta, el trabajo de tablaroca, la colocación de los accesorios y la terminación con pintura de calidad son la culminación de un diseño meticuloso y una ejecución impecable.
Acabados con calidad inigualable




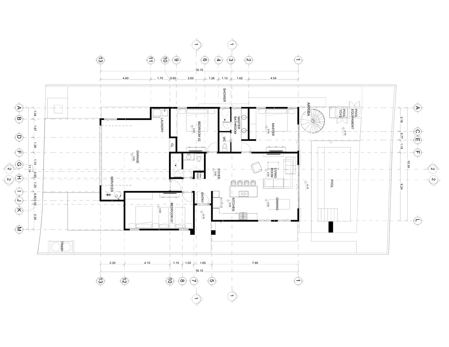
El proyecto ejecutivo es en esencia un manual para la construcción de un edificio; no importa si es una casa pequeña o un gran edificio, el proyecto es de vital importancia para el correcto desarrollo de una construcción.




Una parte muy importante de nuestro trabajo consiste en presentarle al cliente imágenes de su proyecto antes de empezar con la construcción del mismo; estas imágenes se realizan de la manera más apegada a la realiadad lo que le da al cliente una perspectiva única de como quedará construido su proyecto.
Plantas de presentación
Nos dan una idea más precisa de los materiales a utilizar en los pisos de cada uno de los ambientes diseñados, ya sean interiores o exteriores.
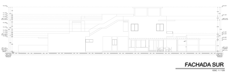
Renders
Imágenes del proyecto lo más apegadas a la realidad para transmitir la sensación de como se verá el proyecto construido.




